西直门院区门诊楼五层诊室装修工程
招标公告
招 标 人:北京大学人民医院
招标类型:施工招标
招标主题:《西直门院区门诊楼五层诊室装修工程》招标公告
改造规模:60平米
资金来源:财政性资金
一、 项目概况
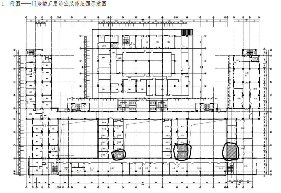
1、事由:门诊楼五层候诊区改造三间诊室,会诊中心翻新。
2、项目位置:北京大学人民医院西直门院区
二、 招标内容和要求
对门诊楼五层候诊区进行改造,新增三间诊室,装修风格及配套设施标准(含一体柜、电气、暖通、消防等)参照已建成诊室;对原有位置监控移至公共区域;根据现场情况考虑诊室内增加洗手池;墙面采用轻质隔墙。会诊中心墙面、天花板翻新。
三、 投标人资格
1. 在中华人民共和国境内合法注册的独立法人单位(不包括外资企业及外资控股企业);
2. 本次招标要求投标人须具备建筑装饰装修工程设计与施工二级(含)以上资质,近三年(2014年04月01日至2017年03月31日)已竣工的工程造价15万元(含)以上的建筑装修工程施工业绩(类似项目描述)业绩,并在人员、设备、资金等方面具有相应的施工能力;
3.财务状况正常,过去三年内无参与或涉及诉讼的案件。
4.投标人三年内无利用不正当竞争手段骗取中标,无重大经济刑事案件(一经发现,立即取消投标和中标资格);
四、 报名时需提交的资料
报名时须携带下述资料的原件以供审查,相应资料的复印件一套(装订成册),一份电子版(纸质报名资料盖章后扫描为PDF格式,以光盘形式随报名文件一同提交)
1. 经年检合格的工商营业执照副本(原件及复印件);
2. 税务登记证(原件及复印件);
3. 相关资质证书(原件及复印件);
4. 业绩证明材料(合同原件及复印件);
5. 法定代表人授权书(原件);
6. 被授权代表身份证(原件及复印件)。
注:以上资料复印件必须加盖单位公章。如有缺漏,招标人将拒绝接受其报名。报名时提供的资料应与投标文件中的资格证明文件一致,投标人的资格合格与否,将由评标专家委员会决定。
五、 报名时间、地点
1. 报名时间:2017年4月20日—4月25日,上午9:00-11:00,下午13:00-16:00(北京时间),逾期一律不接受报名。
2. 报名地点:北京大学人民医院基建办公室(北礼士路54号院未名宾馆305房间)
3. 联系电话:010-88325608、010-88325609、董工、杨工、史工
二〇一七年四月










