北京大学人民医院西直门院区西配楼改造工程项目
交通影响评价报告编制招标公告
招 标 人:北京大学人民医院
招标类型:服务招标
招标主题:西配楼改造工程项目交通影响评价报告编制
改造规模:6467.54平米
资金来源:财政拨款
一、 项目概况
1、事由:北京大学人民医院西直门院区门诊楼北翼内的急诊区域使用面积严重不足,急诊入口(医院北门)开在狭窄的西直门外南路,交通混乱、拥堵问题长年无法解决。为改善医疗条件,给病患营造好的诊治环境,同时也为急诊医护人员创造好的工作环境,缓解急诊北门的拥堵问题。结合医院总体规划,我院拟将西侧附属用房(西配楼)改建为创伤急救中心,同时拟将急救出入口开在西配楼西侧的北礼士路。
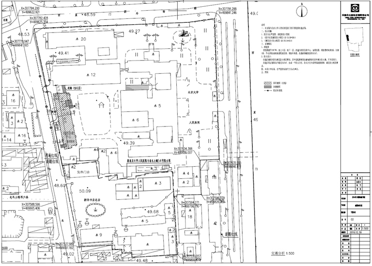
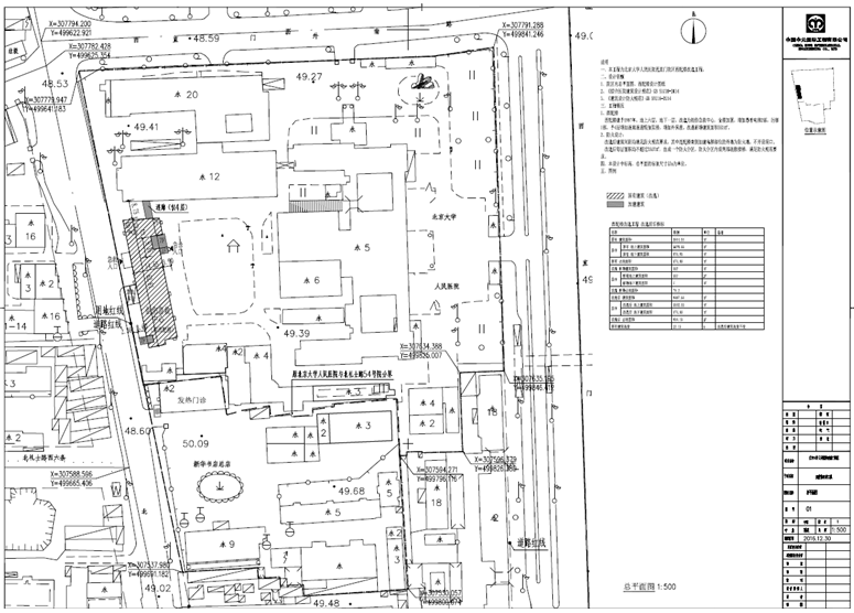
2、项目位置:北京大学人民医院西直门院区
(详见附图一、二)
二、 招标内容和要求
依据京交规发[2013]224号 北京市交通委员会关于印发《北京市建设项目交通影响评价管理办法》的通知、北京市交通委员会关于发布《北京市建设项目交通影响评价报告编制中介机构推荐名单的通知》要求,本项目的交通影响评价报告编制、送审及协助开展对应的评审,最终获得主管部门批复。
三、 投标人资格
1. 在中华人民共和国境内合法注册的独立法人单位(不包括外资企业及外资控股企业);
2. 投标人须在北京市推荐建设项目交通影响评价报告编制中介机构推荐名单范围内;
3. 投标人具有和交通管理相关部门的协调能力;
4. 具有良好的信誉,近三年具有至少5 个类似规模项目业绩(提供项目名称、客户名称、交通影响评价文件类型、审批部门及文号以及项目情况说明等);
5. 财务状况正常,过去三年内无参与或涉及诉讼的案件。
6. 投标人三年内无利用不正当竞争手段骗取中标,无重大经济刑事案件(一经发现,立即取消投标和中标资格);
7. 具有严密的保密制度,能按照委托方要求签写保密协议,严格保守与项目相关的数据秘密;
四、 报名时需提交的资料
报名时须携带下述资料的原件以供审查,相应资料的复印件一套(装订成册)
1. 经年检合格的工商营业执照副本(原件及复印件);
2. 税务登记证(原件及复印件);
3. 相关资质证书(原件及复印件);
4. 业绩证明材料(合同原件及复印件);
5. 法定代表人授权书(原件);
6. 被授权代表身份证(原件及复印件)。
注:以上资料复印件必须加盖单位公章。如有缺漏,招标人将拒绝接受其报名。报名时提供的资料应与投标文件中的资格证明文件一致,投标人的资格合格与否,将由评标专家委员会决定。
五、 报名时间、地点
1. 报名时间:2017年1月12日—1月18日,上午9:00-11:00,下午1:00-4:00(北京时间),逾期一律不接受报名。
2. 报名地点:北京大学人民医院基建办公室(北礼士路54号院未名宾馆305房间)
3. 联系电话:010-88325608、010-88325609、史工、吴工
附件:
1. 附图——交通分析
2. 附图——总图
二〇一七年一月











